
切斷閥
閥門首頁 > 產品展示 > 切斷閥 > 







| DN | G | L | H |
| 25 | 1 | 90 | 130 |
| 32 | 1 1/4 | 140 | 150 |
| 40 | 1 1/2 | 156 | 170 |
| 50 | 2 | 180 | 190 |
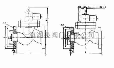
| DN | D1 | K | D | f | n-d | L | H | |
| 25 | 5 | 85 | 115 | 16 | 3 | 4-?14 | 160 | 180 |
| 32 | 6 | 100 | 140 | 18 | 3 | 4-?18 | 180 | 195 |
| 40 | 84 | 110 | 150 | 18 | 3 | 4-?18 | 200 | 05 |
| 50 | 9 | 125 | 165 | 20 | 3 | 4-?18 | 230 | 220 |
| 65 | 118 | 145 | 185 | 20 | 3 | 4-?18 | 290 | 245 |
| 80 | 132 | 160 | 200 | 20 | 3 | 8-?18 | 310 | |
| 100 | 156 | 180 | 220 | 22 | 3 | 8-?18 | 350 | |
| 125 | 184 | 210 | 250 | 22 | 3 | 8-?18 | 400 | |
| 150 | 211 | 240 | 285 | 24 | 3 | 8-?22 | 480 | |
| 200 | 266 | 295 | 340 | 24 | 3 | 12-?22 | 495 | |
| 250 | 319 | 355 | 405 | 26 | 3 | 12-?26 | 622 | |
| 300 | 370 | 410 | 460 | 28 | 4 | 12-?26 | 698 | |
| 350 | 429 | 70 | 520 | 30 | 4 | 16-?26 | 787 | |
| 400 | 480 | 525 | 580 | 32 | 4 | 16-?30 | 914 | |
| 450 | 548 | 585 | 640 | 34 | 4 | 20-?30 | 978 | |
| 500 | 609 | 650 | 715 | 36 | 4 | 20-?33 | 978 | |
| 600 | 720 | 770 | 840 | 38 | 5 | 20-?36 | 1295 |
上一篇:電動防爆切斷閥ZDRW-25 / 下一篇:天然氣快速切斷閥